大阪市・東淀川区・淀川区・旭区・都島区の新築戸建て、中古戸建て、中古マンション、土地、収益物件を仲介手数料無料でmomotarou不動産がご紹介!
"test"?>
 |
東淀川区淡路4丁目 中古戸建  |
 イメージ
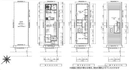
 間取り図
| 価格 |
3,580万円 |
| セールスポイント |
■新築未入居物件!2024年10月築の2LDK+畳コーナー
■駅近物件!阪急京都線『淡路駅』徒歩約5分 |
|


 |
所在地・交通
| 所在地 |
東淀川区淡路4丁目29-2 |
| 交通 |
阪急京都線・千里線「淡路駅」徒歩約5分 JRおおさか東線「JR淡路」徒歩約9分
|
| 沿線駅 |
「淡路駅」 |
通学区(小学校) |
西淡路小学校 |
| 通学区(中学校) |
淡路中学校 |
|
|
土地・建物
| 建物面積 |
78.92m2 |
土地面積 |
61.19m2 |
| 築年月/完成予定 |
2024/10 |
構造 |
木造 |
| リフォーム |
|
| 現況 |
空家 |
専有部分
| 土地権利 |
所有権 |
間取り |
2LDK |
| 地目 |
宅地 |
接道状況 |
北西側:約3.3m |
| 駐車場 |
なし |
階数 |
3階建て |
| 建ぺい率 |
80% |
容積率 |
200% |
| 用途地域 |
第1種住居地域 |
|
|
| 都市計画 |
市街化区域・準防火地域 |
取引条件等
その他
| 物件キーワード |
・中古戸建・未入居・築浅・淡路駅 |
| 問合せ先 |
(株)momotarou不動産 |
| 備考 |
|
 :一週間以内に登録があった物件です。  :新築戸建物件です。  :中古戸建 物件です。  :マンション物件です。
 :土地物件です。  :会員限定物件です。  :間取図が掲載されています。  :物件写真が掲載されています。
 :momotarou不動産からあなたへのおすすめ物件情報です。
|
 |